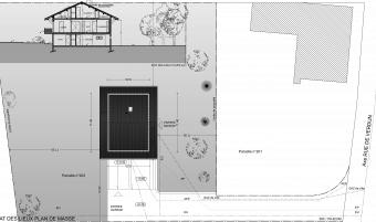
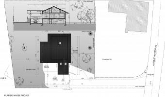
La maison se situe sur la commune de Rumilly en Haute-Savoie. Le projet consiste en la création d’une terrasse faisant office d’abri voiture également en façade Sud et d’un garage recouvert d’une toiture terrasse accessible en façade Ouest. La maison sur 3 niveaux avec balcon a conforté l’idée du projet de création de 2 terrasses et par extension, d’abris voiture (un ouvert, un fermé). La terrasse Sud est crée dans le but de prolonger le balcon existant et donne accès directement à la cuisine, objectif du Maître d’Ouvrage. La seconde terrasse permet de profiter du jardin et est l’aboutissement du balcon existant côté Ouest. Cette terrasse a pour objet de créer un garage fermé rajoutant ainsi une place de stationnement couverte fermée. Les deux terrasses sont recouvertes par une toiture dont une en prolongement de l'existant.
Type de projet:
Extension
Statut:
Chantier terminé
Maitre d'ouvrage:
Mr B.
Lieu d'ouvrage:
Rumilly (74150)
Type de mission:
PC
Dépôt de PC:
Octobre 2011









