Les parcelles sur lesquelles le projet de Mr et Mme A. a été construit sont situées sur le nouveau lotissement nommé "Les Terrasses de la Villette" au lieu-dit "le Clapet".
Le quartier de la Villette se situe en amont de la zone industrielle de l'Albane sur la commune de La Ravoire.
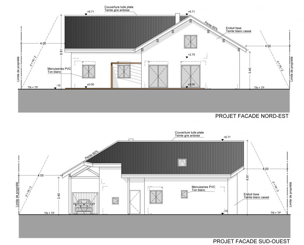
Le projet issu du cahier des charges réside dans la construction d'une maison individuelle. Les différentes parcelles constituant le terrain sont de forme plus ou moins carrées avec peu de contraintes de niveau puisque terrain plat. Voulant profiter de la vue panoramique, la maison est constituée de deux volumes d'hauteur égale imbriquée l'un dans l'autre en forme de "L" ouvert sur le bassin chambérien à 90°. Maison de plain pied, le choix de deux volumes a été dicté par la volonté de distinguer une partie "nuit".
L'architecture qualifiée de contemporaine répond à son environnement par l'emploi de lignes simples, de percements suivant la course du soleil et l'emploi de matériaux de qualité. Présence de l'élément minéral par le gravier indiquant le cheminement jusqu'à l'entrée de la maison et sous l'appenti ; plantation de fleurs et de végétaux d'essences variées sont autant d'éléments qui participent à la composition paysagère et à la mise en valeur de ce jardin.







