Les parcelles des Maîtres d’Ouvrage sont situées sur la commune de Gilly sur Isère. Le terrain se trouve au pied de la fôret des Héris et possède une partie constructible (d'environ 700 m²) et une autre non constructible.
Quartier essentiellement constitué de maisons individuelles et de terrains vierges de toute construction et de belle superficie (dont celui du Maître d'Ouvrage), forme un lieu résidentiel calme et empreint de sérénité.
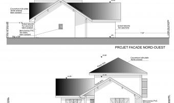
Le projet issu du cahier des charges réside dans la construction d'une maison individuelle d'une surface de 140 m². Les parcelles constituent un terrain de belle superficie mais toute en longueur. Suivant cette contrainte de terrain, la maison a été pensée en longueur, parallèle à la servitude de passage. Ce bâtiment est constitué de trois beaux volumes cassant cette longitudinalité et apportant une touche contemporaine comme certaines maisons de ce quartier.
Le portail donne accès au premier volume constitué du garage et d'un appentis attenant au volume principal. L'appentis est en continuité du garage par le prolongement de la toiture proposant ainsi trois places de stationnement couvertes.
Ce second volume composé en RDC + R+1 peut être accessible aussi par le garage et la chaufferie. Il propose deux parties distinctes : une zone nuit et zone de lieu de vie avec un salon de grande superficie ouvrant sur l'Ouest et sur le troisième volume moins haut que le précédent, composé d'une cuisine ouverte sur un séjour de qualité, débouchant sur une terrasse couverte par la toiture de ce beau volume et mettant en valeur la charpente extérieure de celui-ci.
Cette construction entre dans une vision de développement durable par plusieurs points. Tout d'abord la volonté de construire écologique par la brique alvéolée en terre cuite, le monomur, apportant un lot de qualités par le fait d'un matériau totalement naturel, d'un filtre naturel de l'air, par sa performance énergétique, la régulation hygrométrique, une déperdition thermique nulle, incombustible, isolant thermique et acoustique (renforcée par une isolation extérieure), résistance mécanique, temps de pose réduit par rapport à une construction traditionnelle.
L'emplacement de la maison ainsi que ses pièces ont été étudiés suivant la course du soleil et de grandes fenêtres et baies vitrées ont été mises en place pour optimiser la pénétration de la lumière.













