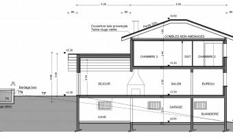
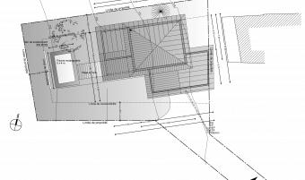
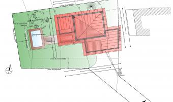
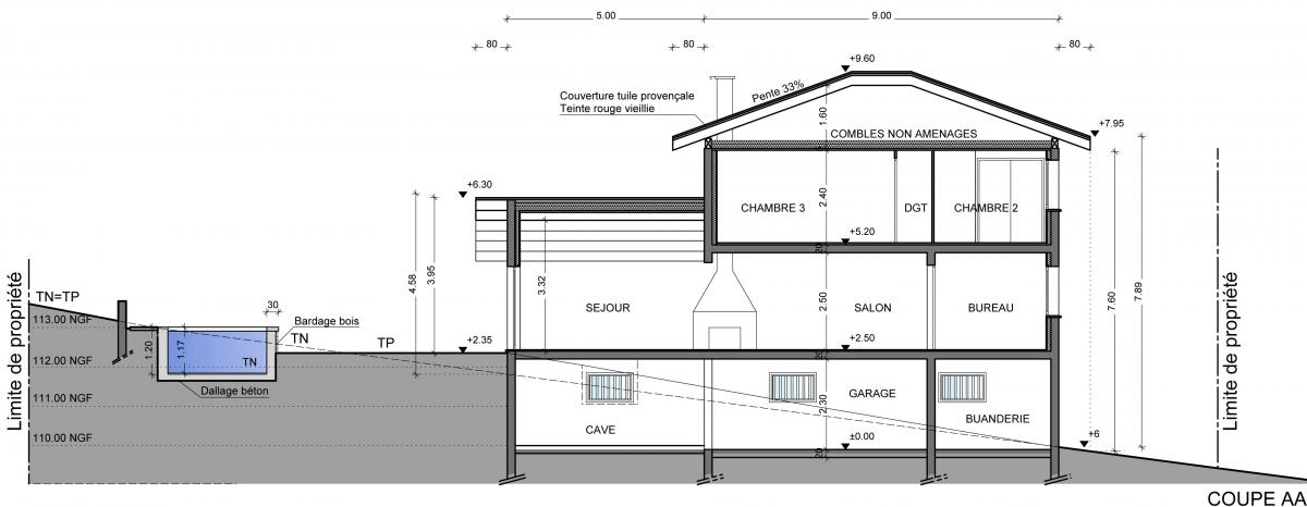
Parcelle située sur la commune de Brussieu dans le Rhône, entre les villes de Lyon et de Feur aux abords de deux Routes Départementales. Le projet est issu en partie du cahier des charges du Maître d’Ouvrage souhaitant une mixité de volumétrie et une maison en forme de « L » permettant un accès direct au garage par le Sud de la parcelle et permettant au reste des volumes de profiter du terrain à l’Ouest de la maison. Découpe en différents volumes évitant ainsi une linéarité du bâtiment et donnant à l’Ouest sur une piscine semi enterrée, accessible par une terrasse couverte.
Type de projet:
Construction neuve
Statut:
Chantier terminé
Maitre d'ouvrage:
Mr et Mme S.
Lieu d'ouvrage:
Brussieu (69690)
Type de mission:
PC
Dépôt de PC:
Octobre 2009
Superficie:
250 m²









