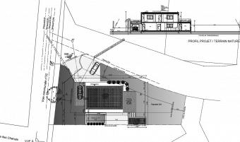
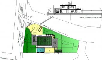
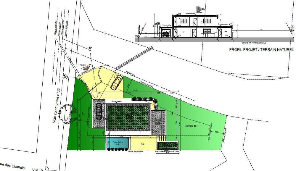
Le projet consiste en la construction d'une maison individuelle contemporaine, de son garage accolé, d'un abri jardin
et d'une piscine creusée à usage d'habitation principale à savoir un logement T6 occupant un rez-de-chaussée et un étage,
sans combles puisque sous toiture terrasse.
Le corps principal de la maison est un volume sur 2 niveaux comprenant les pièces de vie et les pièces de nuit surmonté
d'une toiture terrasse végétalisée inaccessible comme demandé dans le plan local d'urbanisme de la commune de Peronnas.
Un volume secondaire est accolé en partie Est comprenant un niveau et le salon. Il est surplombé d'une toiture terrasse
accessible en gravier où l'accès se fait par les chambres du premier étage du volume principal de la maison.
Le garage situé à l'ouest contre le volume principal est un sur un niveau avec toiture terrasse accessible en gravier servant
de terrasse aux chambres de l'étage de la maison.
Un abri jardin se situant en limite de propriété avec hauteur maximum de 2.50m dixit PLU de la commune de Peronnas
est liaisonné par 5 poutres bois recouvrant le passage au jardin. Des plantes grimpantes pourront trouver leur place afin de créer
une ombre. Une terrasse minérale de belle surface entourant la piscine regroupe les différents volumes de la maison.
Un balcon surmonte cette terrasse et est liaisonné à la terrasse accessible au dessus du salon. Il en va de même que pour
le balcon côté Nord arrivant sur la terrasse accessible au dessus du garage, tout en adoptant une esthétique contemporaine
par le traitement des gardes-corps maçonnés sur 40cm et surmontés de gardes-corps en verre gardant une transparence.
La liaison toitures et gardes-corps maçonnés sont de teinte gris anthracite ainsi que l'ensemble des murs du garage et de
l'abri jardin. L'autre enduit sera blanc cassé/gris très clair. Les ouvertures suivent la course du soleil et
sont en PVC de teinte gris anthracite qui seront fermées par des volets roulants de même matériau et de teinte identique.
Le garage de beau volume offre une place de stationnement couverte.
Le rez-de-chaussée est l'espace de lieu de vie de la famille. L'étage est réservé à la partie nuit de la maison. Il ne concerne
que le volume central. Ces trois différents volumes participent à la composition harmonieuse de l'ensemble.





